Buescher
Hotline

+49 (0)551 69 32 3-7
TESTMODUS

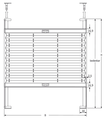
Plissee Messanleitung - Modell S4 KL Klebeprofil

Modellbild

richtig messen

Maß B und H einschließlich
gewünschtem Überstand = Bestellmaß

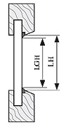
Allgemeine Hinweise

Messen Sie an allen vier Seiten die Breite der Dichtung D wegen eventueller Toleranzen.

Plissee richtig messen

D kleiner oder gleich 5 mm

Bestellbreite = lichte Breite - 4mm
Bestellhöhe = lichte Höhe - 8mm

Die lichte Breite LB und die lichte Höhe LH vor der Dichtung messen!

D größer 5 mm

Bestellbreite = lichte Glasbreite + 7mm
Bestellhöhe = lichte Glashöhe + 3mm

Die lichte Glasbreite LGB und die lichte Glashöhe LGH zwischen der Dichtung messen!

Plissee richtig messen
Plissee richtig messen